Architecture design studio III: Biomimetic architecture
Project by:
Apostolos Mardiris, Ariadni Logiadi
2022
The first part of the studio was an introduction to Rhino and Grasshopper through a series of exercises. In these exercises, we created parametric models, some of them with parametric characteristics. The biomimetic approach was necessary for the main part of the following studio.
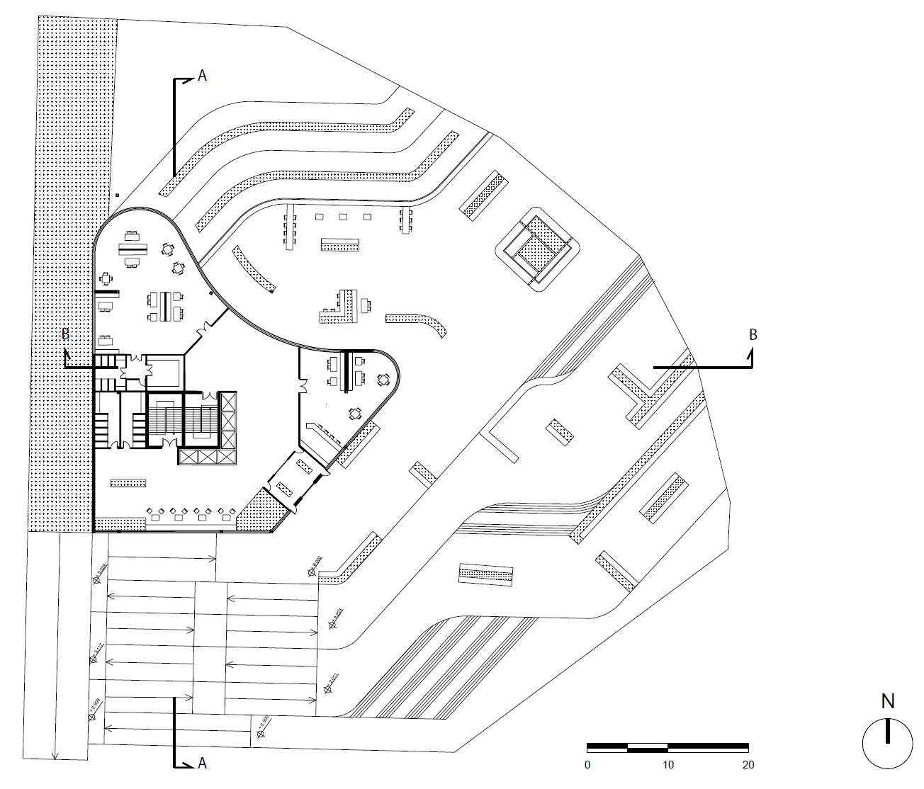
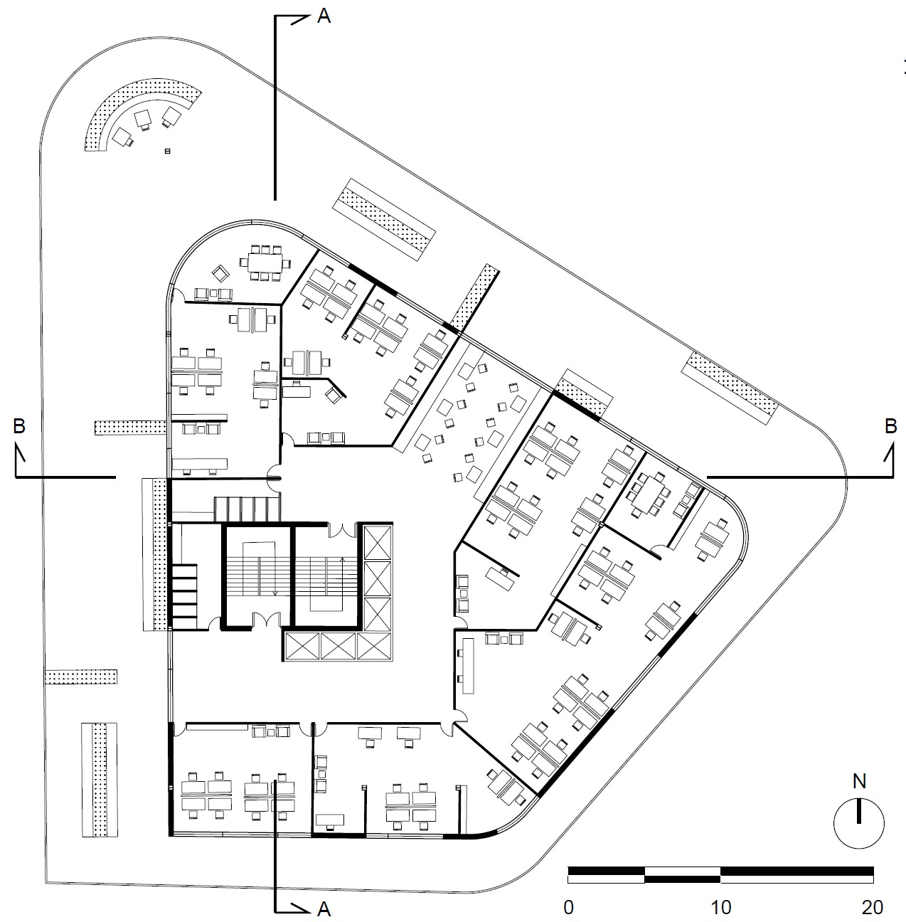
Inspired by nature in both form and function, this biomimetic project is based on the geometries of shale rocks. By observing the birds that nest on shale cliffs, we study the potential benefits of an architecture characterized by the contractions and protrusions formed due to an asymmetrical layering of similar masses. As a result, we take advantage of this morphology’s natural functionality to shield from the sun and wind. Specifically, this is a forty-two-story building that houses a variant of offices, study halls, indoor parks, and outdoor balconies, which despite its size could be categorized as a low energy consumption building design due to its energy efficient shape that both shades from the sun (and so it minimizes the use of air-conditioning) and protects from the wind (and so being able to ventilate naturally, through windows, despite the strong winds that are expected in high-rise buildings).














